Skip links
Interior Design

Hampton Residence

Wilanów Warszawa

Hampton Residence Wilanów - Green House Development

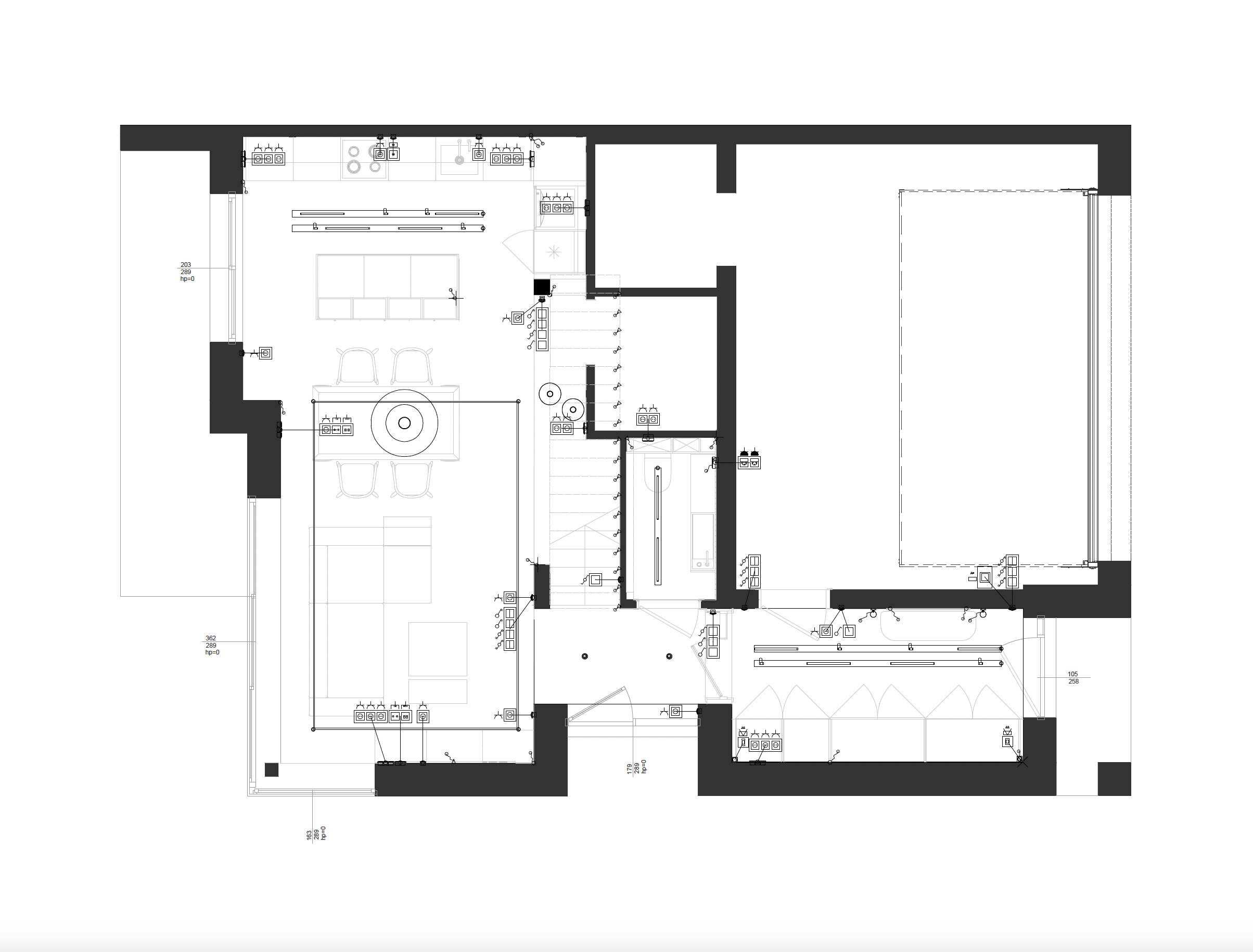
Projekt zmian lokatorskich parteru domu w prestiżowej inwestycji Hampton Residence w Wilanowie. Właścicielka kupiła dom, w którym wprowadzono już wcześniejsze modyfikacje, jednak były one dostosowane do potrzeb innej rodziny. Naszym zadaniem było opracowanie nowego układu funkcjonalnego, odpowiadającego jej indywidualnym oczekiwaniom. Przestrzeń została przeorganizowana tak, by stworzyć otwartą i komfortową strefę dzienną z wyspą kuchenną — kluczowym elementem projektu. Między holem a salonem zaproponowaliśmy przeszklone drzwi z przyciemnianym szkłem, które pozwalają zachować poczucie prywatności i jednocześnie doświetlają wnętrze — dzięki temu, siedząc na kanapie, właścicielka nie widzi drzwi wejściowych. Zoptymalizowano proporcje między kuchnią, jadalnią i salonem oraz poprawiono logikę komunikacji pomiędzy pomieszczeniami. Rysunki techniczne i dokumentacja zmian lokatorskich zostały opracowane z pełną legendą i opisami. Dostęp do tych materiałów posiada wyłącznie właścicielka inwestycji.

Powierzchnia projektowa

Opis projektu

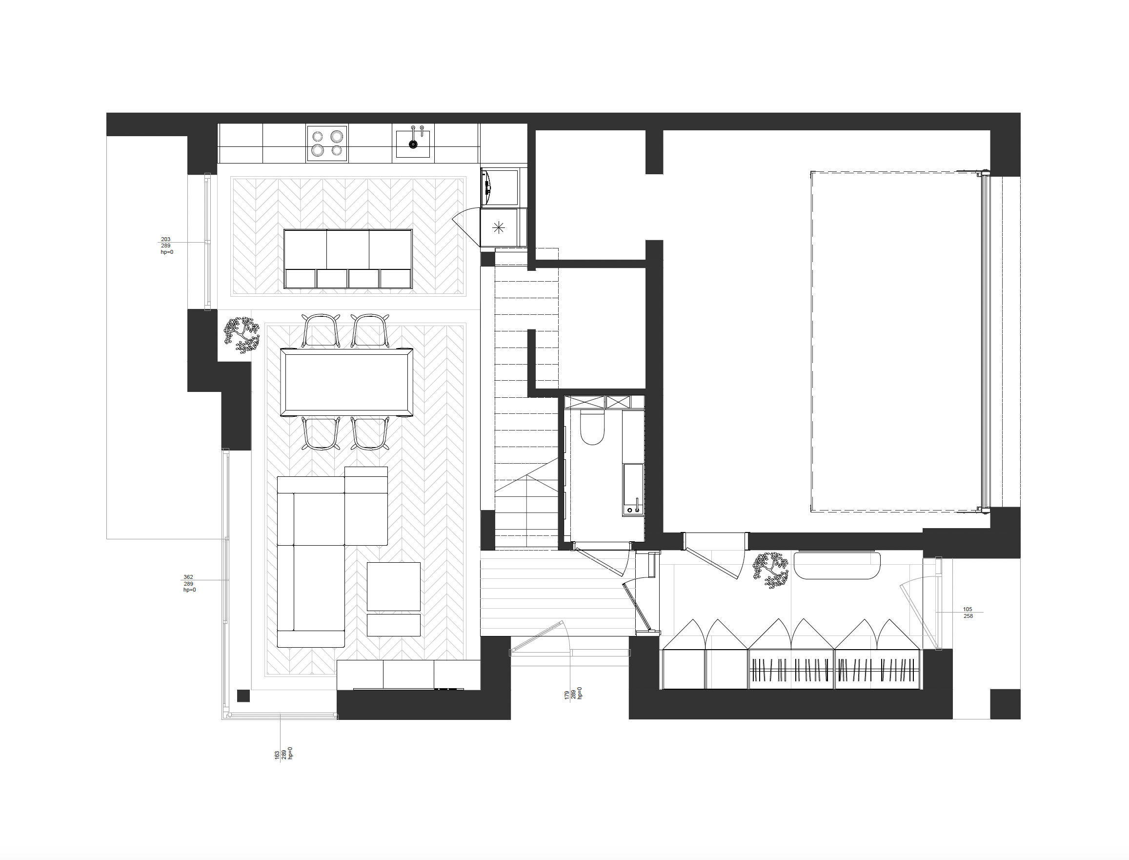
Układ parteru został opracowany z myślą o dopasowaniu przestrzeni do potrzeb nowej właścicielki. Centralnym elementem strefy dziennej stała się wyspa kuchenna, która organizuje układ kuchni i jadalni. Między holem a salonem zaproponowano przeszklone drzwi z przyciemnianym szkłem, które zapewniają prywatność i jednocześnie doświetlają wnętrze. Pod schodami przewidziano wejście do spiżarni, która nie była objęta zakresem projektu. Po prawej stronie budynku znajdują się garaż i kotłownia — instalacje w tych pomieszczeniach pozostają zgodne z projektem dewelopera, bez wprowadzania zmian. Na życzenie Klientki zaproponowano układ podłóg w formie klasycznej jodełki z bordiurą, podkreślającej reprezentacyjny charakter strefy dziennej.

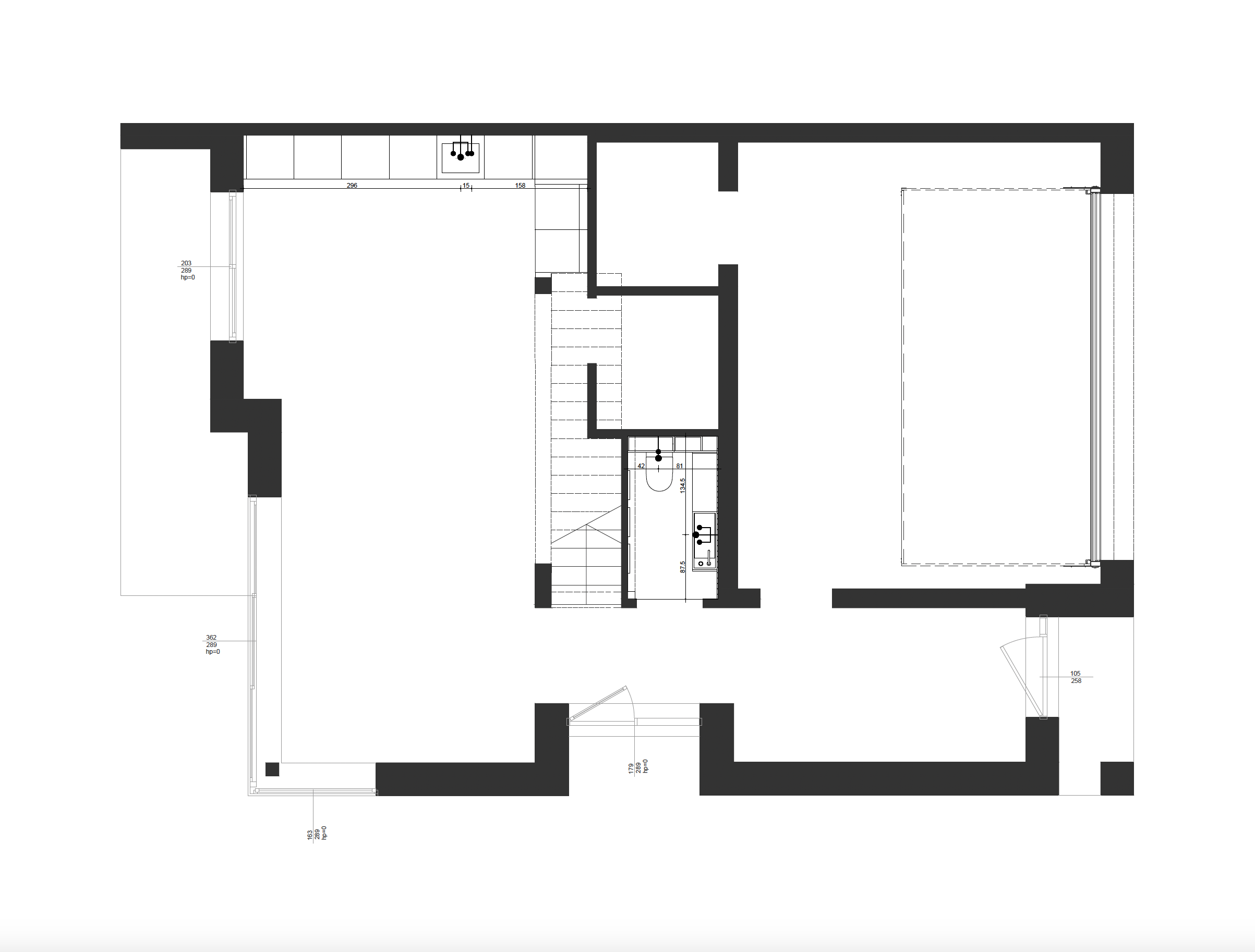
Układ instalacji wodno-kanalizacyjnej został dostosowany do nowej lokalizacji zlewozmywaka i zmywarki w zabudowie kuchennej oraz zmienionego układu zabudowy w łazience na parterze. Choć pierwotnie doprowadzono wodę do wyspy kuchennej, właścicielka zdecydowała się pozostawić zlew po przeciwnej stronie – w ciągu roboczym kuchni. Przeniesiono przyłącza w sposób umożliwiający pełną swobodę aranżacji strefy dziennej, bez ingerencji w konstrukcję budynku. Nie było potrzeby modyfikacji lokalizacji grzejników – w całym domu przewidziano ogrzewanie podłogowe.

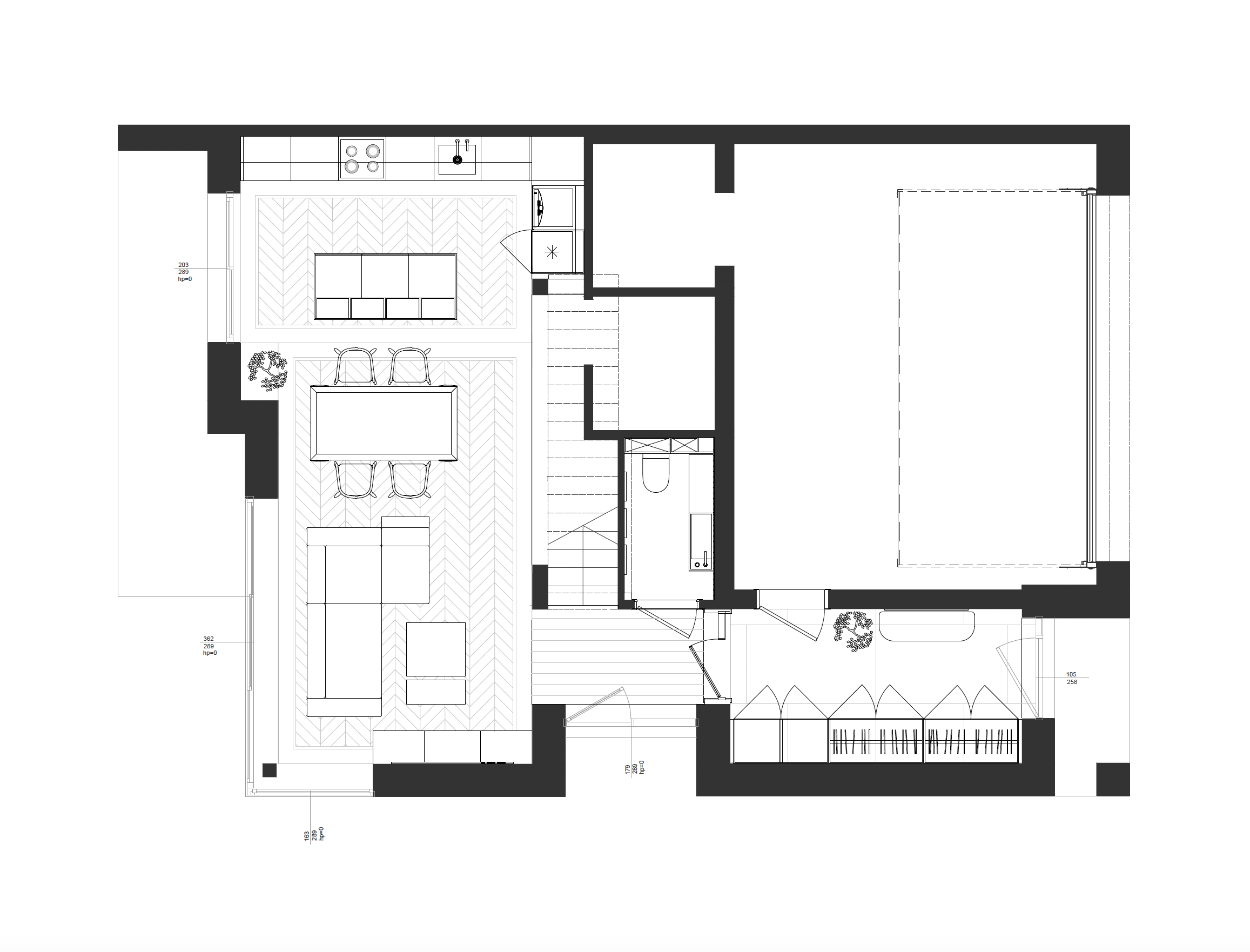
Projekt instalacji elektrycznej został opracowany od podstaw, z pełnym dopasowaniem do nowego układu funkcjonalnego. W holu, kuchni i WC zaprojektowano podtynkowe szyny oświetleniowe ukryte w podwieszanym suficie, zapewniające równomierne i nowoczesne oświetlenie. W zabudowie meblowej w holu zastosowano oświetlenie LED wewnątrz szaf, uruchamiane po otwarciu frontów, oraz LED w cokole – tworzący nastrojowe światło przy podłodze. Przewidziano kinkiety przy lustrze w holu oraz podświetlenie LED wokół lustra w WC.
Na klatce schodowej zaprojektowano oświetlenie LED w każdym stopniu oraz w podeście pod schodami, a we wnękach karniszowych – subtelne podświetlenie zasłon. Na życzenie Klientki podest pod schodami będzie wykończony płytkami, dlatego zaproponowaliśmy matę grzejną pod płytkę, by zapewnić komfort cieplny podczas wchodzenia do spiżarni. Nad stołem w jadalni zaplanowano centralną lampę, a układ gniazd i punktów świetlnych został dopasowany do nowego rozmieszczenia funkcji w całym parterze.

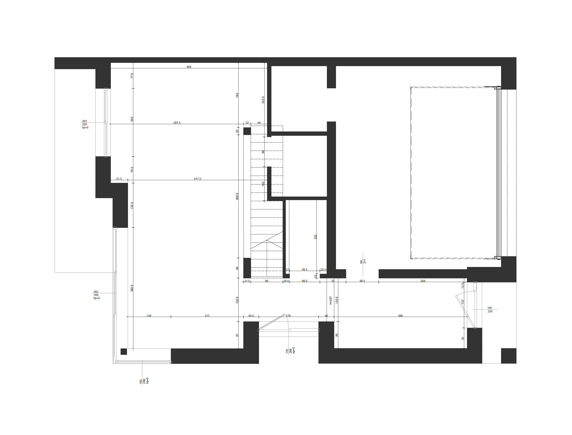
Inwentaryzacja

Układ funkcjonalny

Wytyczne instalacji wod-kan

Wytyczne instalacji elektrycznej

Explore
Drag